El projecte per a la construcció del nou pavelló poliesportiu municipal ha fet un pas decisiu amb l’inici de la primera fase previ a la licitació. Aquesta actuació va ser aprovada durant la Junta de Govern Local pública celebrada el passat dimecres 22 d’abril de 2025. Està previst que després dels tràmits que ens portin fins a la licitació, les obres comencin aquest mateix any.
Amb aquesta aprovació, s’obre el procés d’exposició pública previ a la licitació del projecte a les empreses interessades puguin presentar les seves ofertes per executar les obres. Si es compleixen els terminis previstos, les obres podrien començar aquest mateix any, donant resposta a una llarga demanda ciutadana per ampliar i modernitzar les instal·lacions esportives del municipi.
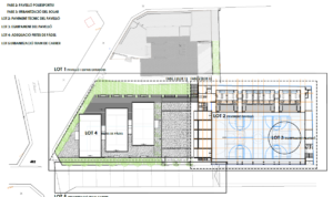
El projecte, amb un pressupost d’execució per contracte de 3.341.689,09 €, preveu la construcció d’un pavelló esportiu amb una superfície construïda de 2.432,00 m². A més, es dividirà en diferents lots d’actuació:
-
Lot 1: Construcció del pavelló esportiu i dels espais exteriors adjacents.
-
Lot 2: Instal·lació del paviment tècnic de la pista del pavelló.
-
Lot 3: Subministrament i instal·lació de l’equipament esportiu.
-
Lot 4: Adequació de les pistes de pàdel exteriors.
-
Lot 5: Urbanització d’un tram de carrer per garantir l’accés a les noves instal·lacions.
El nou pavelló poliesportiu suposarà un gran salt qualitatiu en l’oferta esportiva local, amb espais moderns i adaptats a les necessitats de totes les edats i disciplines.
Documentació relacionada:
Resum projecte poliesportiu.pdf
Visió general.pdf
Pista vestidors.pdf
Façanes1.pdf
Façanes2.pdf
